四川复膜扁平袋式过滤器的工作原理\振动清除机构\清洗方法 -复膜扁平袋式过滤器
涂层扁平袋式过滤器介绍:
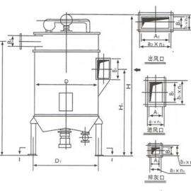
由扁平袋式过滤器的风扇室、过滤室、振动清除机构、吸排气口、门禁、可编程电气控制箱等部件构成。
风扇室里有风扇过滤室:使用微孔膜的复合过滤袋,具有不锈钢网框。
除灰机构:该机构在驱动时对布袋施加拍打振动以实现除灰,下部为直落式除灰。
吸排气口:吸排气口在吸尘器的下部,口径面积大。 排气口在风扇室的旁边,分为左出风口(风向左转)、右出风口(风扇)。
维修门:过滤室一侧设有维修门,用于维修。
可编程电气设备控制箱:本控制系统可自动控制和手动控制,采用可编程电气设备时序控制,可安装在集尘现场或集中控制室,可在吸尘器侧面安装集中配线端子箱。


详细内容
袋式除尘器:多模块吸尘器过滤面积为30-1350m。 每个吸尘器可以根据需要制作层和列的组合,每个标准单元按照15m的过滤面积计算,可以过滤2550~250,000 m/h的空气容量。 袋式过滤器也可以面对面安装(双重),因此可以在减少必要的平台和配管的同时,保留容易维护的优点。 另外,可以更有效地利用现有的空间。 夹克式布袋提供很大的过滤面积,保证有效地清洁灰。 标准设备中有国际知名公司的过滤袋,装有水平式过滤袋。 另外,根据用途准备了别的过滤材料。 模块化设计体现了数组和容量的灵活性。 沉流式气流降低了二次扬尘的可能性。 标准的支撑结构满足100mph和4级地震区域的要求。

单袋吸尘器的工作原理:
单体袋滤器(单体吸尘器)工作时,含尘气体会进入的单体吸尘器壳体被单体袋滤器(单体吸尘器)的扁平袋滤器过滤,粉尘被单体袋滤器(单体吸尘器)的过滤袋外面阻挡,
主要特点
1 .安装在发尘点直接清扫,因此无需架设长的吸气管道和排尘管道。
2 .从吸尘器的吹出口排出的空气是99.6%的净化空气。
3 .与FDG系列双密封可调弓型导向槽组合使用,收尘效果好,不产生第二次污染,可以自行回收煤粉满足再利用和节约能源的要求。
4 .电动机功率小,噪音低,功耗少。
5 .吸尘器体积小,重量轻,不需要占用建筑面积和水资源。
6 .吸尘器和皮带机通过PLC可编程联动,所有的作业程序完全自动执行。
7 .设备几乎没有维护和管理工作。

清理方法:
随着过滤时间的增加,附着在单体布袋吸尘器(单体吸尘器)过滤袋外面的粉尘也增加,过滤袋的阻力也相应增加,影响单体布袋吸尘器(单体吸尘器)的除尘效果。 该单体布袋吸尘器使用自控灰机构定时振动清洗灰或手控制灰机构停止后,自动振动数十秒钟,使其附着。


